展示会・研修会(前日搬入・設営)
ご利用例
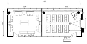
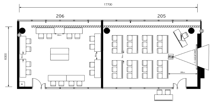
展示利用206号室、研修利用205号室使用
17:00~21:00(1日目206号室のみ設営)、9:00~21:00(2日目2室とも本番)
ご利用イメージ
ご利用施設
レイアウト平面図
主なご利用備品・附属設備
プロジェクター(A)、80インチスクリーン、無線マイク(ハンド)※マイクは205,206号室別団体で単室使用時は音漏れのため使用不可、会議机
お見積もり例
| 項目 | 金額 | 備考 |
|---|---|---|
| 施設利用料金(冷暖房費込み) | 35,450円 | 1日目夜間設営(206)、2日目終日本番(205,206) |
| 備品・附属設備利用料金 | 33,960円 | |
| その他 | 3,000円 | コピー代金(1枚カラー50円) |
| 総計72,410円 | ||
開錠(ご入室)から施錠(ご退室)までがご利用時間となります。準備・撤去に時間が必要な場合は、その時間も含めます。
※前日に機材やパネル・ボード等を設営する場合や翌日に向けて荷物を置いた状態で退出される等、施設を連日でご利用になる場合は夜間枠を含めた連続でのご利用とします。
2F控室は有料です。多目的会議室の申請時間に準じた貸し出しが可能です。
入場料金の徴収がある場合は、徴収する金額に応じ施設料金の30%~80%に相当する額を加算します。
営利を目的として使用する場合は、施設料金(入場料徴収による加算がある場合はその適用後の額)の20%に相当する額を加算します。
室内でご利用の会議机(W1800×H700×D600)、会議椅子および利用開始時のレイアウト設営料金を含みます。
※前日に機材やパネル・ボード等を設営する場合や翌日に向けて荷物を置いた状態で退出される等、施設を連日でご利用になる場合は夜間枠を含めた連続でのご利用とします。
2F控室は有料です。多目的会議室の申請時間に準じた貸し出しが可能です。
入場料金の徴収がある場合は、徴収する金額に応じ施設料金の30%~80%に相当する額を加算します。
営利を目的として使用する場合は、施設料金(入場料徴収による加算がある場合はその適用後の額)の20%に相当する額を加算します。
室内でご利用の会議机(W1800×H700×D600)、会議椅子および利用開始時のレイアウト設営料金を含みます。


