参加者860名程の社内発表会(会期1日)
ご利用例
平日メインホールで860名規模の社内発表会を開催。(昼食会場として2階、1階フロアも使用。)
ご利用イメージ
ご利用施設
メインホール(3F・4F) / ホワイエ(3F) / 特別会議室・応接室(2F) / 多目的会議室 201、202、203、204(2F) / 会議室 205、206(2F) / 交流ギャラリー(1F) / 会議室 101(1F)
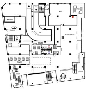
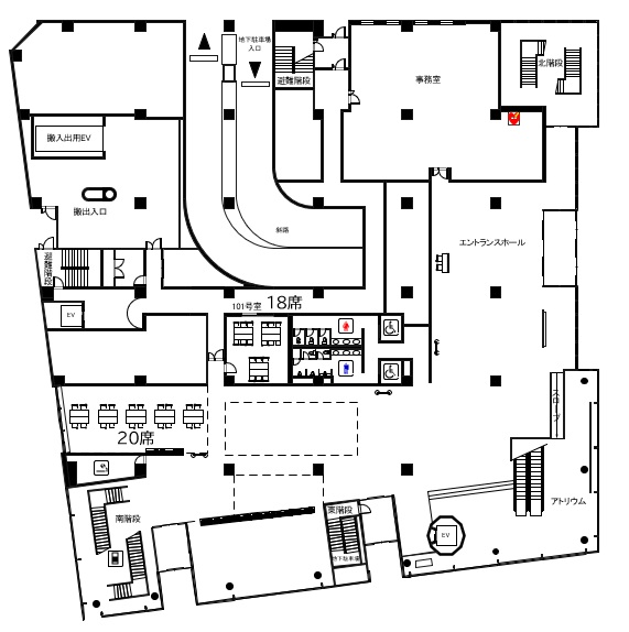
レイアウト平面図
主なご利用備品・附属設備
大型プロジェクター+334インチスクリーン、ホール基本照明、演台(大)、会議机、椅子、司会台、有線マイク(卓上スタンド)、無線ハンドマイク、無線LAN、展示パネル、システムパネル
お見積もり例
| 項目 | 金額 | 備考 |
|---|---|---|
| 施設利用料金(冷暖房費込み) | 469,520円 | ※2F、1Fは、9:00~16:00の時間枠利用 |
| 備品・附属設備利用料金 | 283,080円 | ※備品料金改定の場合あり |
| 総計752,600円 | ||
開錠(ご入室)から施錠(ご退室)までがご利用時間となります。準備・撤去に時間が必要な場合は、その時間も含めます。
※前日に機材やパネル・ボード等を設営する場合や翌日に向けて荷物を置いた状態で退出される等、施設を連日でご利用になる場合は夜間枠を含めた連続でのご利用とします。
2F控室は有料です。多目的会議室の申請時間に準じた貸し出しが可能です。
入場料金の徴収がある場合は、徴収する金額に応じ施設料金の30%~80%に相当する額を加算します。
営利を目的として使用する場合は、施設料金(入場料徴収による加算がある場合はその適用後の額)の20%に相当する額を加算します。
室内でご利用の会議机(W1800×H700×D600)、会議椅子および利用開始時のレイアウト設営料金を含みます。
※前日に機材やパネル・ボード等を設営する場合や翌日に向けて荷物を置いた状態で退出される等、施設を連日でご利用になる場合は夜間枠を含めた連続でのご利用とします。
2F控室は有料です。多目的会議室の申請時間に準じた貸し出しが可能です。
入場料金の徴収がある場合は、徴収する金額に応じ施設料金の30%~80%に相当する額を加算します。
営利を目的として使用する場合は、施設料金(入場料徴収による加算がある場合はその適用後の額)の20%に相当する額を加算します。
室内でご利用の会議机(W1800×H700×D600)、会議椅子および利用開始時のレイアウト設営料金を含みます。





